
	 
| 整 车参数 
 | 总长(mm) | 6800 | 发 动 机 参数 | 发动机型号 | ISD160 50 | ||
| 
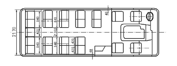
 | 总宽(mm) | 2320 | 
 | 
 | 
 | ||
| 
 | 总高(mm) | 2800/3010 | 
 | 发动机生产厂 | 东风康明斯发动机有限公司 | ||
| 
 | 车厢内高(mm) | 1730 | 
 | 位置/燃油 | 前置/柴油 | ||
| 
 | 轴距(mm) | 3650 | 
 | 发动机型式 | 直列四缸 高压共轨 | ||
| 
 | 前悬/后悬(mm) | 1270/1880 | 
 | 最大功率(kw/r/min) | 118/2500 | ||
| 
 | 接近角/离去角(º) | 23/18 | 
 | 最大扭矩(N.m/r/min) | 600/1400 | ||
| 
 | 一级踏步高(mm) | 550 | 
 | 排量(L) | 4.5L | ||
| 
 | 厂定最大总质量(kg) | 7800 | 
 | 排放标准 | 国V | ||
| 
 | 额定乘员数 (人) | 10-23 | 整车公告及批次 | 251 | |||
| 
 | 最高车速(km/h) | 95 | 产品等级及批次/人数 | ----- | |||
| 
 | 行李仓容积(m3) | -- | 国家环保目录及批次 | 
 | |||
| 
 | 轮距(mm) | 1725/1625 | 燃料消耗检测批次 | ----- | |||
| 项 目 | 标 准 配 置 | 选装配置 | |||||
| 底盘参数及配置 | 底盘型号 | EQ6650KZ5T | |||||
| 
 | 变速箱 | 17TQ14-00030 东风6档 | 
 | ||||
| 
 | 离合器 | Ф350 | 
 | ||||
| 
 | 前桥 | 2300005-CQ01Z 东风德纳 3吨 | 
 | ||||
| 
 | 后桥 | 24WS02T-00005 东风德纳 4.8吨 | 
 | ||||
| 
 | 悬架 | 钢板弹簧 前10/后12片 | 
 | ||||
| 
 | 转向 | 液压动力转向 | 
 | ||||
| 
 | 制动 | 双回路气压制动 | 
 | ||||
| 
 | 气瓶 | 无 | 
 | ||||
| 
 | 轮胎 | 7.50R20 6个(备胎1个) | 
 | ||||
| 
 | 蓄电池/发电机 | 2*12V 120Ah免维护蓄电池 24V 100A发电机 | 
 | ||||
| 
 | 其它 | ABS | 
 | ||||
| 车身主要总成 | 车身结构 | 非承载式 | 
 | ||||
| 
 | 内饰 | 空调内饰(成型亚麻风道) | 
 | ||||
| 
 | 车门及门泵 | 手动折叠门,手动旋转门 | 气动折叠门,气动外摆门 | ||||
| 
 | 侧窗 | 全粘接带窗中窗 | 
 | ||||
| 
 | 风挡 | 前挡夹胶、后挡钢化 | 
 | ||||
| 
 | 后视系统 | 153驾驶室外后视镜,驾驶室内后视镜 | 
 | ||||
| 
 | 空调系统 | ---- | 153驾驶室内置空调,东风派恩顶置式单冷系统,13KW(8000cal/h) | ||||
| 
 | 暖风系统 | ------ | 燃油式液体加热器YJ-Q16.3,取暖器数量选装3只 | ||||
| 
 | 
 | 
 | 可选装简易水暖(数量:3只)、可选装壁挂式水暖 | ||||
| 
 | 除霜器 | 24V 180W | ———— | ||||
| 
 | 视听系统 | MP3收放机 | 深圳长宇MP4或MP5系统19〞彩显(四声道四喇叭) | ||||
| 
 | 灯具 | 前组合灯具、后分体灯具 | 后组合灯具 | ||||
| 
 | 雨刮器 | 153驾驶室电动雨刮器 | ------- | ||||
| 
 | 座椅 | 19座 | 普通座椅,中档座椅 | ||||
| 
 | 油漆 | 国产素色漆 | 金属漆,进口漆(BASF) | ||||
| 
 | 其它 | PVC地板革、平地板、侧窗卷筒窗帘、电风扇、2KG灭火器(1个)、内视镜、安全锤 (3把)、700A型天窗、气喇叭、机械式断电开关、153驾驶室顶灯、电子钟、GPS行车记录仪 | 石英砂防滑地板革、铝花纹板、700B型换气天窗、倒监系统、倒监带GPS导航系统 | ||||
	
	
	 
	
	
	 
	
	
	 
	
	
	 
	
	
	 
	



